1 к.кв. ЖК Левада-2 (№ 212-744-583)

Ціна: 51 999 $
Характеристики
| Ціна: | 51 999 $ |
|---|---|
| № об'єкта: | 212-744-583 |
| Кімнат: | 1 см/рз, студія |
| Поверх: | 15 / 16 ліфт |
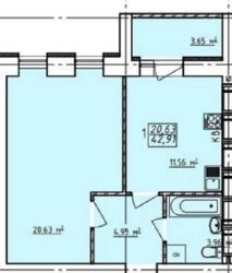
| Площа: | 43 / - / 12 м2 |
| Санвузол: | 1 сумісний |
| Балкон: | балкон |
| Додатково: | новобудова |
Адреса: Харківська, Харків, Основянський, Заливная ул., 6, м. Левада
Продам 1-кімнатну квартиру з переуступки в новобудові комфорту класу «ЖК Левада 2». вул. Заливна 6. Гарний вид з 15 поверху, 16 поверхового будинку, НЕ ТОРЕЦЬ, дуже тепла. Будинок збудований надійним забудовником Трест «Житлобуд - 1». Будинок цегляний, утеплений мінеральною ватою, заселений! У будинку два тихохідні швидкісні ліфти. Комунікації підключені, в будинку два ліфти. У квартирі найкраще планування, не торець, загальна площа 43м2, велика кухня 12м2, з виходом на лоджію. Велика кімната 20.57м2 в ній два вікна, розташована на 15 поверсі квартири виконаний якісний стильний ремонт у приємних тонах, залишаються всі меблі та техніка. У квартирі зроблена якісна електрика та сантехніка.Квартира дуже світла, тепла та затишна, з гарним виглядом з вікон. Чудовий варіант для сім'ї. Комплекс знаходиться у центральній частині міста, за 5 хвилин від метро пр. Гагаріна, поруч супермаркети, фітнес клуби. Гарна транспортна розв'язка.












