4 к.кв. ЖК Павлівський квартал (№ 212-849-779)

Ціна: 155 000 $
Характеристики
| Ціна: | 155 000 $ |
|---|---|
| № об'єкта: | 212-849-779 |
| Кімнат: | 4 |
| Поверх: | 19 / 20 |
| Площа: | 145 / 65 / 20 м2 |
Адреса: Харківська, Харків, Шевченківський
У продажу своя 2-х рівнева 4-х кімнатна квартира розташована в секції 7 ЖК
Павлівський Квартал по
вул. Сухумська, 22, центр, м.
Наукова, Держпром.
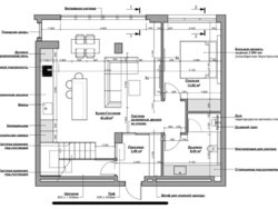
Квартира знаходиться на 19-20 поверсі, загальна площа - 145 кв.м.
На етапі будівництва зроблено перепланування під 4 кімнати для комфортного проживання сімї з двома дітьми: 1-й поверх: кухня-гостинна, спальня, санвузол;
2-й поверх: 2 просторі дитячі спальні, гардеробна та ванна кімната. Квартира в будівельному стані.







